Zeitgemäß wohnen im Grünen - Doppelhaushälfte nahe Mattighofen
Grunddaten
Objektnummer:
1234506208
Objektart:
Haus
Nutzungsart:
Wohnen
Vermarktungsart:
Kauf
Lage:
5230 Mattighofen, Braunau am Inn, Oberösterreich
Kaufpreis:
€ 428.000
Provision:
Grundfläche:
370 m²
Wohnfläche:
105 m²
Zimmer:
4
Eigenschaften:
- Bautyp: Neubau
- Zustand: Erstbezug
- Böden: Parkett
- Verfügbar: ab sofort
- Ausstattung: Abstellraum
Beschreibung
Willkommen in Ihrem neuen Zuhause – eine moderne Doppelhaushälfte in herrlich ruhiger Lage, eingebettet in die idyllische Landschaft rund 15 Kilometer von Mattighofen entfernt. Wer das Leben im Grünen schätzt und dennoch eine gute Anbindung wünscht, findet hier den idealen Rückzugsort.
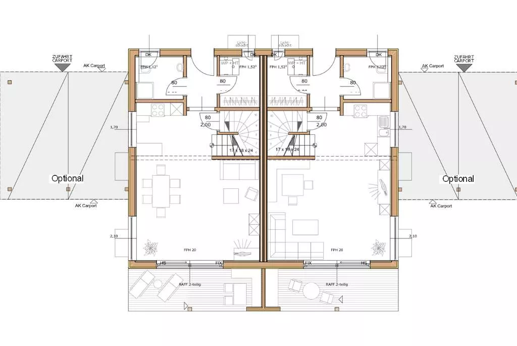
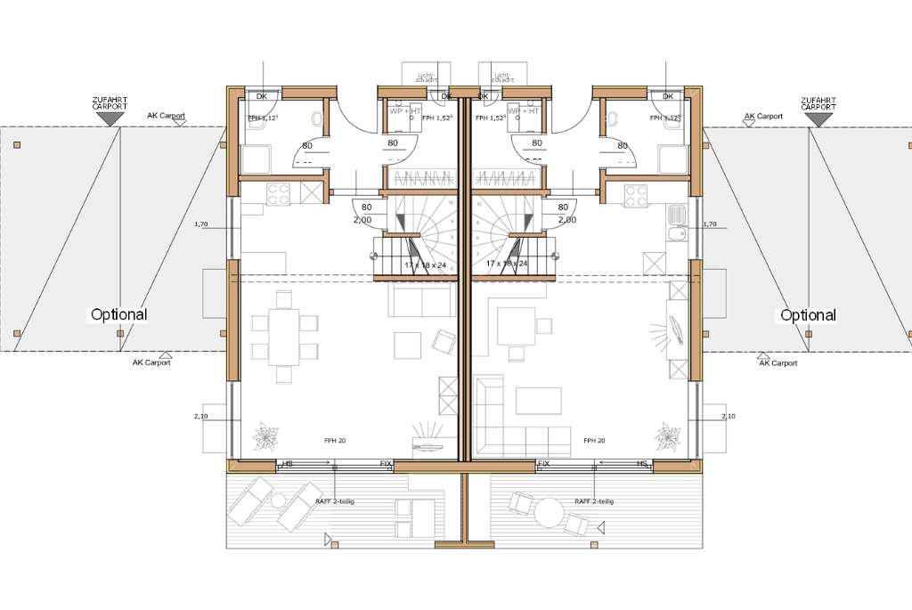
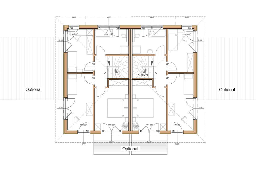
Mit rund 105 m² Wohnfläche auf zwei Ebenen überzeugt dieses Haus durch klare Linien, großzügige Fensterflächen und eine offene Raumgestaltung. Der helle Wohn- und Essbereich mit Zugang zur südlich ausgerichteten Terrasse ist das Herzstück des Hauses – perfekt für entspannte Stunden mit Familie und Freunden. Im Obergeschoss erwarten Sie drei Zimmer, die flexibel als Schlafzimmer, Kinderzimmer oder Homeoffice genutzt werden können.
Das ca. 400 m² große Grundstück bietet Raum für individuelle Gartengestaltung, Spielen, Entspannen oder auch eine spätere Erweiterung. Ob gemütliche Sitzecke, Hochbeete oder Spielbereich – hier sind Ihrer Kreativität keine Grenzen gesetzt.
Technisch ist das Haus auf dem neuesten Stand: Eine moderne Wärmepumpe sorgt über die Fußbodenheizung für behagliche Wärme – und auf Wunsch auch für angenehme Kühle an heißen Sommertagen. Hochwertige Bodenbeläge und eine stilvolle Ausstattung runden das Gesamtbild ab.
Sorglospaket – Sie brauchen nur noch Ihr Bett und die Couch !
Zusätzlich zur Schlüsselfertigen Variante sind folgendes Leistungen enthalten.
Energiepaket : Pv-Anlage 4,5 kwp – Stromspeicher ca. 5 kwp – E-Tankstelle im Carport.
Pflasterungen im Carport und dem Vorplatz sowie im Geräteraum
Gartenpaket- Rasensaat – Bepflanzung lt. Leistungsumfang- Terrasse lt. Plan mit WPC oder Feinstein.
Hebeschiebetüre 3,6 m breite, Lesefenster, Beschattung mit E-Antrieb, Sanitär Fein- Standard.
Preis Komplett mit diesem Leistungsumfang 498.000 € samt Grund und sämtlichen Fundamenten.
Highlights
Ob als neues Zuhause für Paare, junge Familien oder Menschen mit Sinn für modernes Wohnen in ländlicher Umgebung – diese Immobilie bietet eine besondere Kombination aus Ruhe, Stil und Zukunftsfähigkeit.
- Naturnahe, ruhige Wohnlage, ca. 15 Minuten nach Mattighofen
- Rund 105 m² Wohnfläche, lichtdurchflutete Räume
- Großzügige Terrasse mit Südausrichtung
- 3 flexible Zimmer im Obergeschoss
- Ca. 400 m² Grund zur freien Entfaltung
- Hochwertige, moderne Haustechnik inkl. Wärmepumpe
- Fußbodenheizung & optionale Kühlfunktion
- Erweiterungsmöglichkeiten vorhanden
- Zeitlose Materialien und stilvolle Details
