Großzügige 3-Zimmer-Wohnung in Franking nahe dem Holzöstersee in 8 km Entfernung zu Lamprechtshausen
Grunddaten
Objektart:
Wohnung
Nutzungsart:
Wohnen
Vermarktungsart:
Kauf
Lage:
Top 8, 5112 Lamprechtshausen, Salzburg-Umgebung, Salzburg
Kaufpreis:
€ 393.000
Provision:
3% zuzüglich Mwst
Wohnfläche:
95m²
Zimmer:
3
Eigenschaften:
- Neubau / Neuwertig
- Parkettböden
- Carport
- Fahrstuhl
- Balkon
Beschreibung
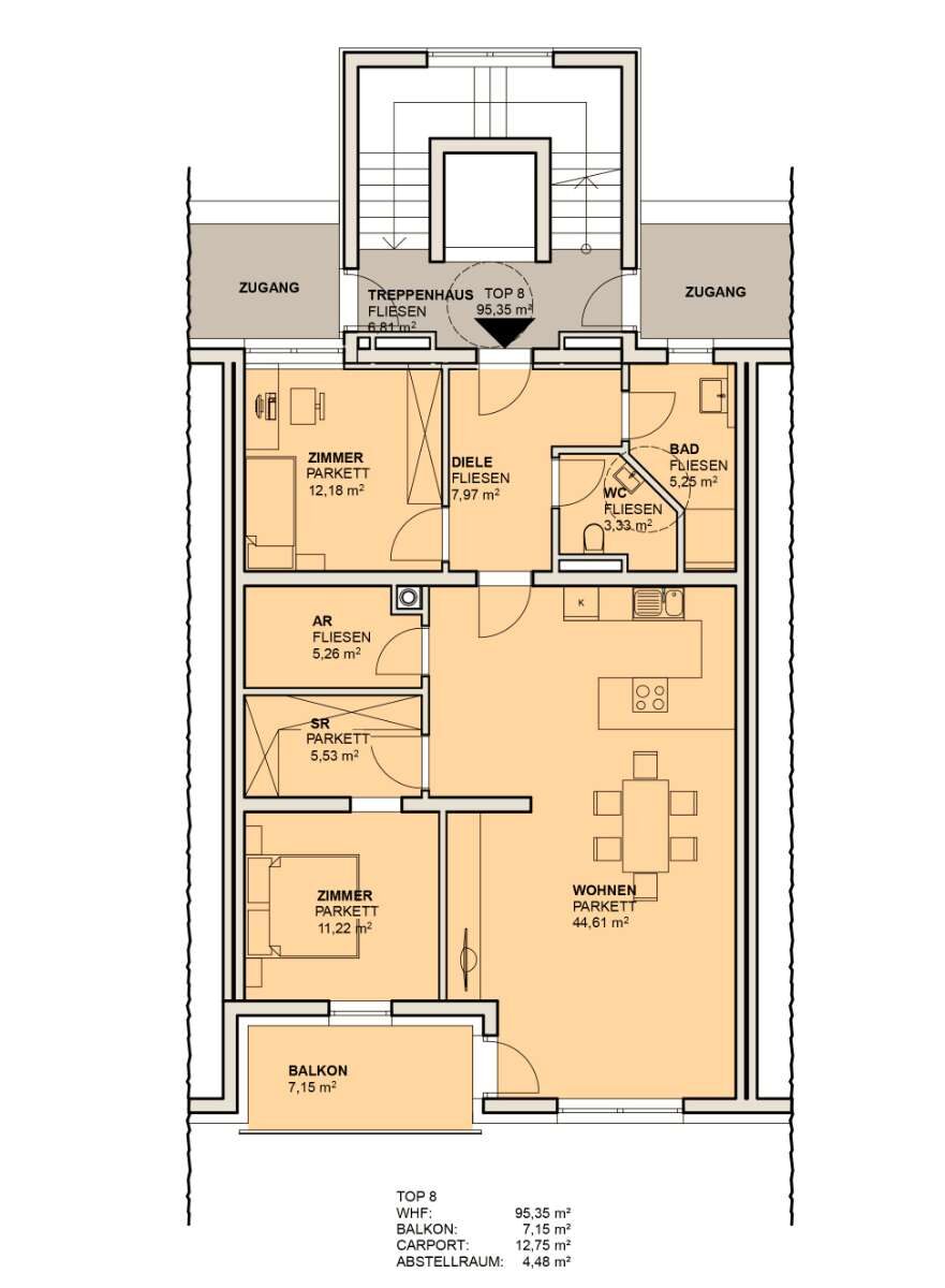
Großzügige 3-Zimmer-Wohnung mit Balkon nahe dem Holzöstersee Diese im Jahr 2022 erstbezogene Wohnung überzeugt durch ihre großzügige Raumaufteilung und eine moderne Ausstattung. Auf rund 95,35 m² Wohnfläche bietet sie ein komfortables Zuhause für Paare, Familien oder anspruchsvolle Singles. Der großzügige Wohn- und Essbereich (44,61 m²) mit integrierter Küche ist das Herzstück der Wohnung. Von hier aus gelangt man direkt auf den 7,15 m² großen Balkon, der zum Entspannen im Freien einlädt. Zwei weitere Zimmer (12,18 m² und 11,22 m²) eignen sich ideal als Schlafzimmer, Kinderzimmer oder Homeoffice. Das Badezimmer mit ebenerdiger Dusche und ein separates WC sorgen für hohen Wohnkomfort. Ein großzügiger praktischer Abstellraum sowie ein Schrankraum, der flexibel als kleines Büro, Hobbyraum oder begehbarer Kleiderschrank genutzt werden kann, runden das Platzangebot ab. Zusätzlich zur Wohnung gehört ein Carport sowie der direkt anschließende separate Abstellraum. Die Lage besticht durch ihre Nähe zu Salzburg und Lamprechtshausen und natürlich zum Holzöstersee, der fußläufig erreichbar ist. Besonders in den Sommermonaten lädt der See zu Spaziergängen, Badeausflügen und entspannten Stunden in der Natur ein. Zur Gemeinde Franking: Der Holzöstersee ist der bedeutsamste See in Franking. Er ist einer der wärmsten Badeseen Österreichs und dient als Freizeit- und Erholungsraum. In der Umgebung gibt es Moorlandschaften, unter anderem das Ibmer Moor, eines der größten Hochmoore im Alpenraum. Diese Gebiete bieten besondere Natur- und Erlebnismöglichkeiten wie Moorlehrpfade. Die Anbindung ist gut: von Salzburg und anderen größeren Orten kommt man über die Bundesstraßen sowie Landesstraßen nach Franking / Holzöster am See. Die Lage ist ländlich und ruhig – ideal, wenn man Abstand vom Trubel, aber dennoch gewisse Infrastrukturnähe schätzt. Die Natur prägt stark: Wälder, Wiesen, Seen, Moorgebiete – viel Raum für Erholung, Outdoor-Aktivitäten, Ruhe und klare Luft. Freizeitmöglichkeiten: Baden am See, Bootfahren, Wandern, Radfahren, Reiten, Moorlehrpfade und andere naturnahe Angebote.
Highlights
- Wohnfläche: 95,35 m²
- Balkon: 7,15 m²
- 3 Zimmer + großzügiger Wohn-/Essbereich
- Erstbezug 2022
- Wichtig: die Wohnung ist barrierefrei
